cedar homes

Custom Cedar Homes - Post and Beam Homes      

 CONTACT US AT:  800-728-4474 [email protected]
cedar homesfacebook.com blog 

Cedar Homes - Post and Beam Homes - Custom Homes

Birchview post beam homes

The Birchview Bay - Post and Beam

Birchview Post Beam Homes

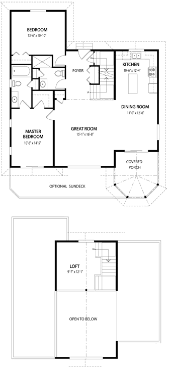
Post and Beam Series  The Birchview Bay   Area 1382 Sq Ft
Main Floor
1241
 
Upper Floor
141
Bedrooms
2
Bathrooms
2
Width
38
Depth
48

  Download Brochure

Floor Plan

Birchview Floor Plan

Why we are the right Custom Cedar Homes, Post and Beam Home Builder?
Click here to find out about our custom homes ...

Cedar Homes - Post and Beam Homes - Custom Homes


GALLERY OF HOMES
.......................................................
FREE eNEWSLETTERS
......................................................
ORDER PLANBOOKS
......................................................
REQUEST INFO
......................................................

PACKAGE SPECS
Architectural
Classic
Post and Beam
......................................................
AWARD WINNERS AWARD WINNERS
......................................................
CABINS GARAGES CABINS & GARAGES
......................................................
FAMILY HOMES FAMILY HOMES
......................................................
mODERN hOMES MODERN HOMES
......................................................
RETREATS COTTAGES RETREATS & COTTAGES
......................................................
TOP 20 PLANS
......................................................
JOIN US ON GOOLGE+

 

Custom Cedar Homes

For custom designed cedar homes
, prefabricated homes, post and beam homes, prefab homes,
timber frame homes, post and beam construction and custom home planbooks, contact:
Cedar Designs, LLC. 800-728-4474.

If you would like to contact Cedar Designs, LLC., or see more of our Custom Cedar Homes, Post and
Beam Homes, Prefab Homes or Timber Frame Homes, please contact Cedar Designs, LLC., by calling
1 800 728-4474
or email us. We take pride in the quality of our customer service.

Privacy Policy | Terms of Use

 

Cedar Designs, LLC.
PO Box 1123
Carson, WA 98610

Tel: (800) 728-4474 or
(509) 427-4944
Fax: (509) 427-8145

9:00 AM - 6:00 PM (Pacific)
7 Days



 
Cedar Designs, LLC. offers affordable custom cedar home kits for sale in: Alabama, Alaska, Arizona, Arkansas, California, Colorado, Connecticut, Delaware, Florida, Georgia, Hawaii, Idaho, Illinois, Indiana, Iowa, Kansas, Kentucky, Louisiana, Maine, Maryland, Massachusetts, Michigan, Minnesota, Mississippi, Missouri, Montana, Nebraska, Nevada, New Hampshire, New Jersey, New Mexico, New York, North Carolina, North Dakota, Ohio, Oklahoma, Oregon, Pennsylvania, Rhode Island, South Carolina, South Dakota, Tennessee, Texas, Utah, Vermont, Virginia, Washington, West Virginia, Wisconsin, Wyoming. Post and Beam Homes Cedar Homes